Ballószögben eladó új-építésű ház
-
Ár
- Normál ár
- 63.000.000
- Akciós ár
- 63.000.000
- Normál ár
-
- Egységár
- /
Ingatlan megtekintése
Ha szeretné megtekinteni az ingatlant, hívja munkatársunkat időpont egyeztetésért!
Amennyiben új projektről van szó, kollégáink előre megbeszélt időpontban irodánkban fogadják Önt és kedves családját, majd a szóba jöhető projektek kiválasztását követően személyesen is megtekinthetik épülő házainkat illetve bemutatjuk mely projektjeink közül választhatnak.
Miért válasszon minket?
HASZNÁLT VAGY ÚJ ÉPÍTÉSŰ HÁZAT, LAKÁST SZERETNE? AKKOR EGYÉRTELMŰEN A DREAM-HOME A LEGBIZTONSÁGOSABB MEGOLDÁS!
HASZNÁLT INGATLANOK, ÚJ TÉGLA ÉS KÖNNYŰSZERKEZETES KÉSZ HÁZAK ÖNRE SZABVA!
Mi tudjuk, hogy minden ügyfélnek fontos a biztonság, így nagyon nem mindegy milyen céget választ amikor egy új ház építésébe vág bele… Vannak a piacon ígéretek, rengeteg az új próbálkozó, így válasszon minket ha nyugodtan szeretne aludni! Mi nem fogunk elfutni, Kecskemét új építésű házainak jó részét mi csináltuk az elmúlt években, így nyugodtan utánunk járhat!
FELÉPÍTETT MÁRKANEVÜNK, TÖBB SZÁZ ÁTADOTT OTTHON A GARANCIA!
A Dream-Home Ingatlan és Új Ház Építő Centrum több mint 20 éves szakmai tapasztalatával, profi csapatával folyamatosan azon dolgozik, hogy megtalálja ügyfeleinek a legideálisabb megoldást.
Hisszük, hogy nincsenek problémák, csak megoldandó feladatok.
- Több mint 10.000 ügyfél
Használt és új ingatlanok értékesítése, bérbeadása, hasznosítása - Lakóparkok fejlesztése
- Családi házak építése, kivitelezése
- Több mint 750 felépült és átadott családi ház
- Több mint 150 építési telek Kecskemét és környékén
- Babaváró, CSOK és Hitel ügyintézés
Építkezésbe fogna?
Megosztás





Mennyi?
Budapest és 35 km-es vonzáskörzetében: Árajánlat egyeztetés alapján
Kecskemét és 35 km-es vonzáskörzetében:
- Tégla 1 szintes: 460.000.- Ft / nm (nettó négyzetméter)
- Kanadai könnyűszerkezetes A+ 1 szintes (amennyiben a ház legalább 80 nm-es): 348.000.- Ft / nm (bruttó négyzetméter)
- Kanadai könnyűszerkezetes A+ 2 szintes (amennyiben a ház legalább 80 nm-es): 350.000.- Ft / nm (bruttó négyzetméter)
- Fémszerkezetes könnyűszerkezetes: 450.000.- Ft / nm
- Gipszrost szerkezetes : 480.000.- Ft / nm
- SIP panel könnyűszerkezetes: 350.000.- Ft / nm (bruttó négyzetméter)
- SIP 2 panel könnyűszerkezetes 510.000.- Ft / nm (nettó négyzetméter)
- Ytong: Egyedi árajánlat alapján
- Isoshell: Egyedi árajánlat alapján
- Gerendaház: Egyedi árajánlat alapján
- Rönkház: Egyedi árajánlat alapján
Szeged és 35 km-es vonzáskörzetében: Árajánlat egyeztetés alapján
Magyarország egyéb települések: Árajánlat egyeztetés alapján
Ausztria: Árajánlat egyeztetés alapján
Jelen árak családi házakra vonatkoznak, társasház kivitelezéssel kapcsolatban árajánlatért kérjük vegye fel cégvezetőnkkel, Lévay Gergellyel a kapcsolatot a +36-70/319-0803-as telefonszámon.
A ház ára sík terepen való építkezéshez van beállítva, különleges terepen, egyedi ajánlatra van szükség mindenképpen. Végső árat a telek megismerése, felmérése után tudunk tenni.
Természetesen igény szerint mindent elkészítünk, egyedi árajánlat alapján.
A műszaki beltartalomban meghatározottaktól el lehet térni, de abban az esetben egyedileg kell beáraznunk a tervet, az igények ismeretében. Mindenképpen javasoljuk a személyes találkozót kecskeméti irodánkban.
Ballószögben eladó új-építésű ház!
Az ár kulcsrakész állapotban történő átadással értendő és a telek árát is tartalmazza!
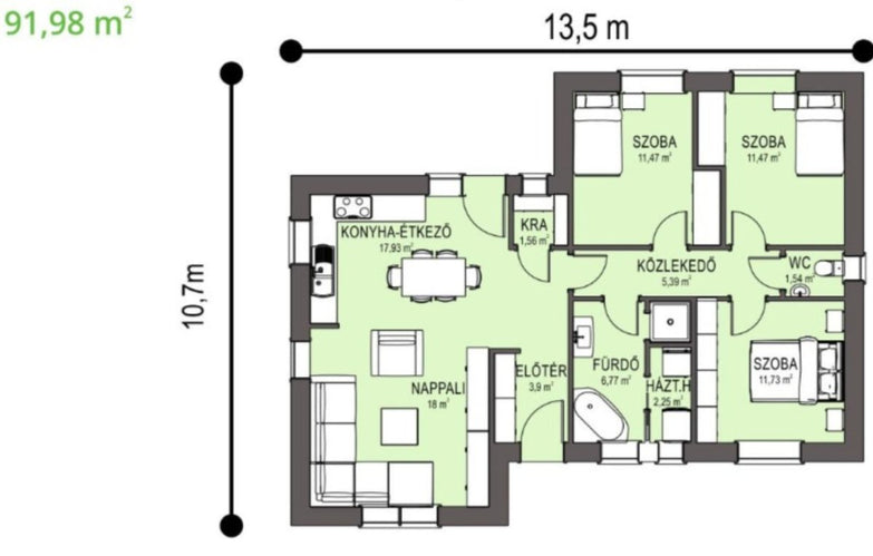
Eladásra kínálunk egy napelemmel felszerelt 92 m2-es családi ház projektet Ballószög új-építésű részén 724 m2-es közművesített telken. Mire elég a házra felszerelt napelem? A teljes ház egész évben történő felfűtéséhez 21-22°C-on tartva. A további felszabadult energiát a rendszer visszatölti az áramhálózatba, melynek okán további 40-60%-os áramszámla csökkenés, vagy akár teljes energiamentesség eredményezhető.
Az elkészülési idő garantált 10 hónap!
A családi ház nettó alapterülete 92 m2, amely tartalmaz:
– 4 szobát (amerikai konyha-nappali-étkező + 3 hálószoba);
– 1 fürdőszobát;
– 1 WC-t;
– kamrát;
– háztartási helyiséget;
– és egy előszobát.
Műszaki tartalom:
– Teherhordó falazat: Wienerberger Profi 30 K klíma tégla
– Homlokzati hőszigetelés: 15 cm homlokzati hőszigetelés
– Tetőhéjazat: Bramac vagy Terrán tetőcserép
– Külső nyílászárók: 3 réteg üvegezésű 6 légkamrás Marshall Gealan külső nyílászárók
– Válaszfal: Isover Akusto hangszigetelt válaszfalak
– Gépészet:
(a) Napelem** + gáz fűtés Ariston CLAS ONE 24 kW vagy Bosch Condens 3000 24 kW kondenzációs gázkazán (padlófűtéssel)
(b) Napelem** + infra fűtés (padlófűtéssel)
– Hidegburkolat választható: 8.500 Ft / m2 (bruttó)
– Melegburkolat választható: 6.500 Ft / m2 (bruttó)
– Szaniterek választható: (kád, zuhanykabin, csaptelep stb.) 600.000Ft-ig
*Az ár kulcsrakész állapotban történő átadással értendő, konyhabútor és lámpatestek nélkül!
**A napelem mennyisége az épület hasznos területének függvénye!
Használja ki Ön is a Babaváró hitel nyújtotta lehetőségeket! Keressen ingyenes tanácsadásért hogy megtudjuk pontosan milyen lehetőségei vannak az otthon teremtésre!
Ha a neten nem találja álmai otthonát, ne aggódjon, mi megtaláljuk Önnek! Amennyiben finanszírozásra is szüksége van a vásárláshoz, vagy ÁLLAMI TÁMOGATÁST is szeretne kapni, esetleg CSOK-ot vagy BABAVÁRÓ-t igényelne, ne aggódjon, BANKCENTRUMUNK 30 bank ajánlatából kiválasztja Önnek a LEGJOBB megoldást! Ami megoldható azt mi megoldjuk!
Hívjon bizalommal!
Horváth József
projektmenedzser
KMUJ813/20